CalNEXT Center for Solar Energy Research
CalNEXT Center for Solar Energy Research
Overview
The STAIRlab is a core contributor to the CalNEXT Center for Solar Energy Research, a campus-wide initiative launched by UC Berkeley Engineering in partnership with NextPower to accelerate innovation in next-generation solar technologies. CalNEXT integrates several coordinated research thrusts spanning digital monitoring, solar tracking, coating and cleaning technologies, and resilience and asset-health monitoring, each addressing a critical componet of performance and reliability in utility-scale solar installations.
Within this multi-thrust framework, STAIRlab leads Thrust B, which focuses on resilience, functional recovery, and asset-health monitoring of photovoltaic (PV) systems. A central contribution is the development of a large-scale portable PV testbed that enables controlled, repeatable experiments to quantify how environmental and mechanical stressors influence long-term solar performance. By measuring both electrical output and structural behavior under varied conditions, this work supports CalNEXT’s mission by generating practical insights for researchers, industry partners, and asset owners seeking to enhance the reliability and efficiency of utility-scale solar infrastructure.
Role of STAIRlab in Thrust B
The main element of Thrust B is the “Portable PV Testbed,” a platform designed to create controlled and repeatable conditions for studying how environmental stressors affect solar panels over time. By integrating electrical and structural measurement capabilities, the testbed enables precise tracking of performance changes and supports data-driven Asset-Health Monitoring. This setup mirrors realistic operating scenarios, producing insights that benefit industry stakeholders, including solar farm owners, operators, and maintenance teams, who depend on reliable, long-term system performance.
Core Objectives
The portable PV testbed is being engineered as a shared resource for both academic and industry use, providing a controlled platform for rigorous evaluation of solar panel behavior. Through collaboration with several UC Berkeley laboratories, the system enables systematic testing of environmental and mechanical conditions affect both electrical performance and structural integrity. The resulting high-fidelity datasets will strengthen field-informed models essential for improving the reliability, maintainability, and operational longevity of utility-scale solar assets.
Equipment and Components
Solar Panels
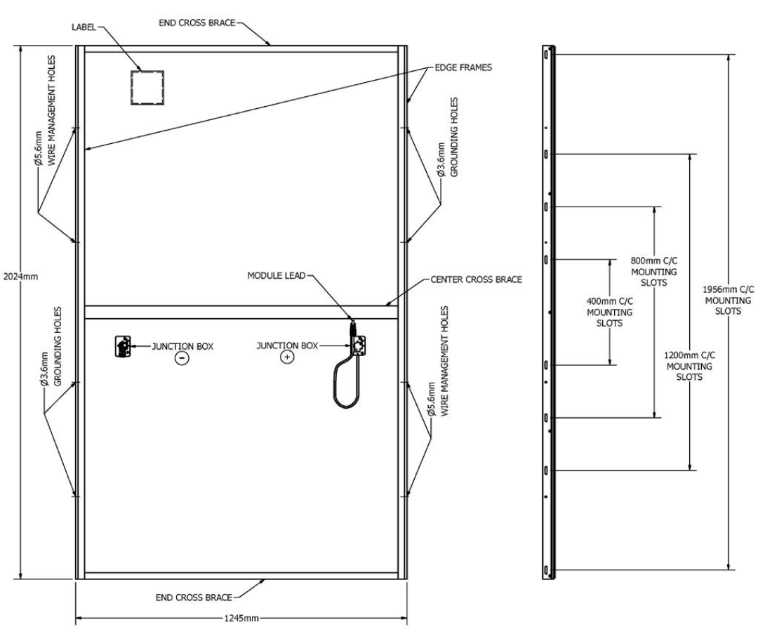
The experimental foundation of the testbed relies on the First Solar Series 6 Plus Bifacial modules, Figures 1 and 2. These modules represent the first commercial application of bifacial thin-film technology and provide a nominal power range of 420 to 450 Watts with an approximate degradation rate of 0.3% over 30 years. Each module measures 2024 mm (79.7”) by 1245 mm (49”) and weighs 34 kg (74.96 lbs)1. The design uses a glass/glass construction with heat-strengthened layers on both sides and an anodized aluminum frame bonded to the glass using Silicone adhesive.

Figure 1: Module characteristics.

Figure 2: Module frame and mounting details.
Single Phase Inverter
A string-phase string inverter will be used to convert the direct current (DC) output of each PV string into alternating current (AC) while enabling detailed electrical monitoring. The inverter includes multiple independent maximum power point tracking (MPPT) channels and operates within a DC input range of approximately 550 to 600 volts, with a 5 kW AC rating2. This prevents variations in irradiance or performance in one string from affecting the others. The inverter continuously records voltage, current, power, and cumulative energy generation, making it a central component for electrical performance assessment.
Portable Setup

Figure 3: Portable steel frame.
The testbed is mounted on a custom-fabricated steel frame designed for mobility and ease of deployment, Figure 3. Heavy-duty caster wheels allow movement between laboratories, outdoor exposure areas, and seismic testing facilities without disassembly. The rigid steel structure provides stable support for utility-scale modules while enabling rapid repositioning to test different orientations, environmental conditions, and mechanical configurations.
Unmanned Ground Vehicle and LiDAR System
The inspection platform integrates a mobile robotic unit with a light detection and ranging (LiDAR)-based sensing payload for non-contact structural health monitoring. The system is built on the ROVER ZERO 4WD unmanned ground vehicle (UGV), a rugged platform suitable for autonomy and field experimentation. Key components include:
- Compute & Control: An Intel NUC i7 serves as the onboard processor for sensor integration and motor control.
- Power & Operations: The UGV includes an integrated charging dock for continuous operation.
- Integration: A dedicated payload deck and robot operating system (ROS)/ROS2 compatibility streamline sensor deployment.
The sensing payload uses the Livox Mid-360 LiDAR mounted on the UGV, Figure 4, integrated with the Intel NUC i7 and using the FAST-LIO2 simultaneous localization and mapping (SLAM) framework for accurate real-time localization and mapping.

Figure 4: UGV and LiDAR system.
Applications
The portable PV testbed supports controlled experiments designed to replicate conditions experienced by utility-scale solar installations. Electrical performance is monitored through the multi-MPPT inverter, while repeated LiDAR scans capture geometric deformation, frame movement, and changes in mechanical connections as panels experience stressors such as dust accumulation, thermal cycling, shading, vibration, and aging. Combining these two data streams provides a comprehensive understanding of how structural and electrical behavior evolve over time.
This integrated approach is especially valuable for industry stakeholders who rely on limited field observations to make decisions about maintenance scheduling, cleaning protocols, structural reinforcements, and long-term reliability. By generating high-fidelity experimental data, the testbed reduces uncertainty and supports evidence-based asset management.
Collaborations and Shared Research Use
The portable PV testbed is intended as a shared research asset across UC Berkeley. Beyond supporting Thrust B’s focus on resilience, functional recovery, and asset-health monitoring, the testbed will serve research groups in Energy & Resources, Mechanical Engineering, and Electrical Engineering that require controlled, repeatable experimental conditions for PV degradation and performance studies.
Team Members
- Professor Khalid M. Mosalam (PI)
- Dr. Amarnath Kasalanati (Staff)
- Dr. Jiawei Chen (Postdoc)
- Mr. Omar Shabana (GSR)
Footnotes
1 First Solar. (2023). Series 6 Plus Bifacial: Global Module Datasheet (MPD-00925-06-PB).
2 SolaX Power. (2025). X1-SMART G2 Single-Phase String Inverter. Retrieved from https://www.solaxpower.com/our-products/x1-smart.html.
< Back to previous page